vai alle valutazioni sul database WALTER GROPIUS
esercizi di stile 2023 / 2024
torna all'indice della galleria
Lorenzo Mazzarella Sabrina Nastasi Francesco Nicosia Asia Pagano
Emanuela Pagliarello Yvonne Palmeri Marta Parisi Alfredo Pricone
Alessia Rapisarda Claudia Reale Sofia Riganello Marilena Romano
Caterina Sapienza Sofia Scaravilli Maria Giulia Sciacca Federica Uccellatore

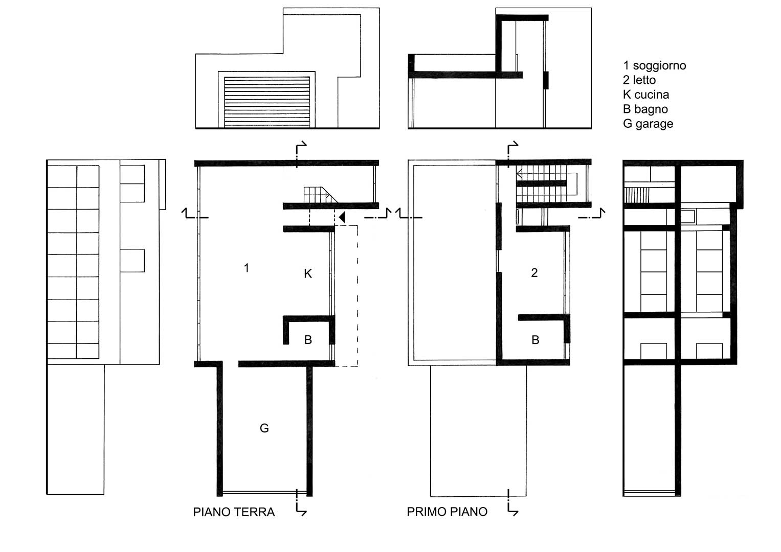
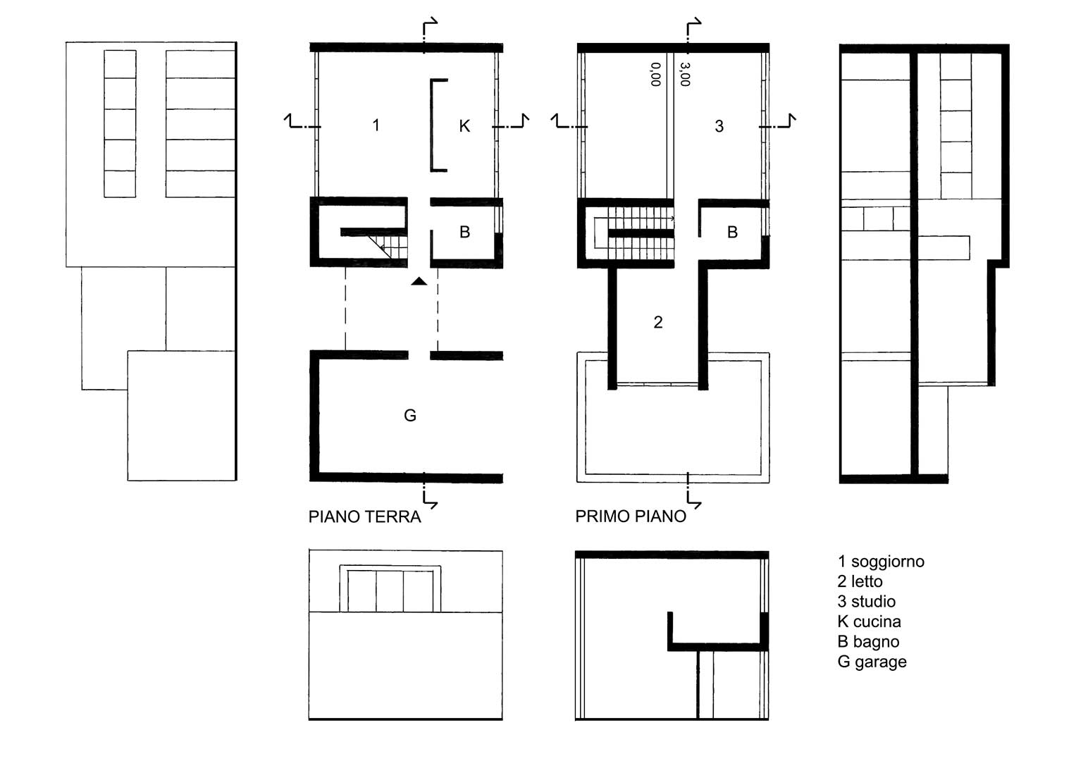
[ click sulle icone per i disegni e le foto dei modelli ]