vai alle valutazioni sul database LE CORBUSIER
esercizi di stile 2021 / 2022
torna all'indice della galleria
Silvia La Carta Dario Mangione Simona Messina Vincenzo Messina Giusi Paratore
Sofia Sabato Vittoria Sapienza Sofia Scafidi Salvatore Tomasello Chiara Vaccarella


Gabriele Barone


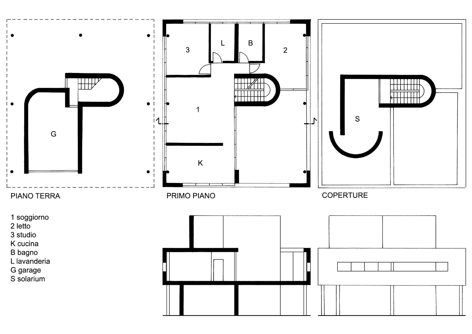
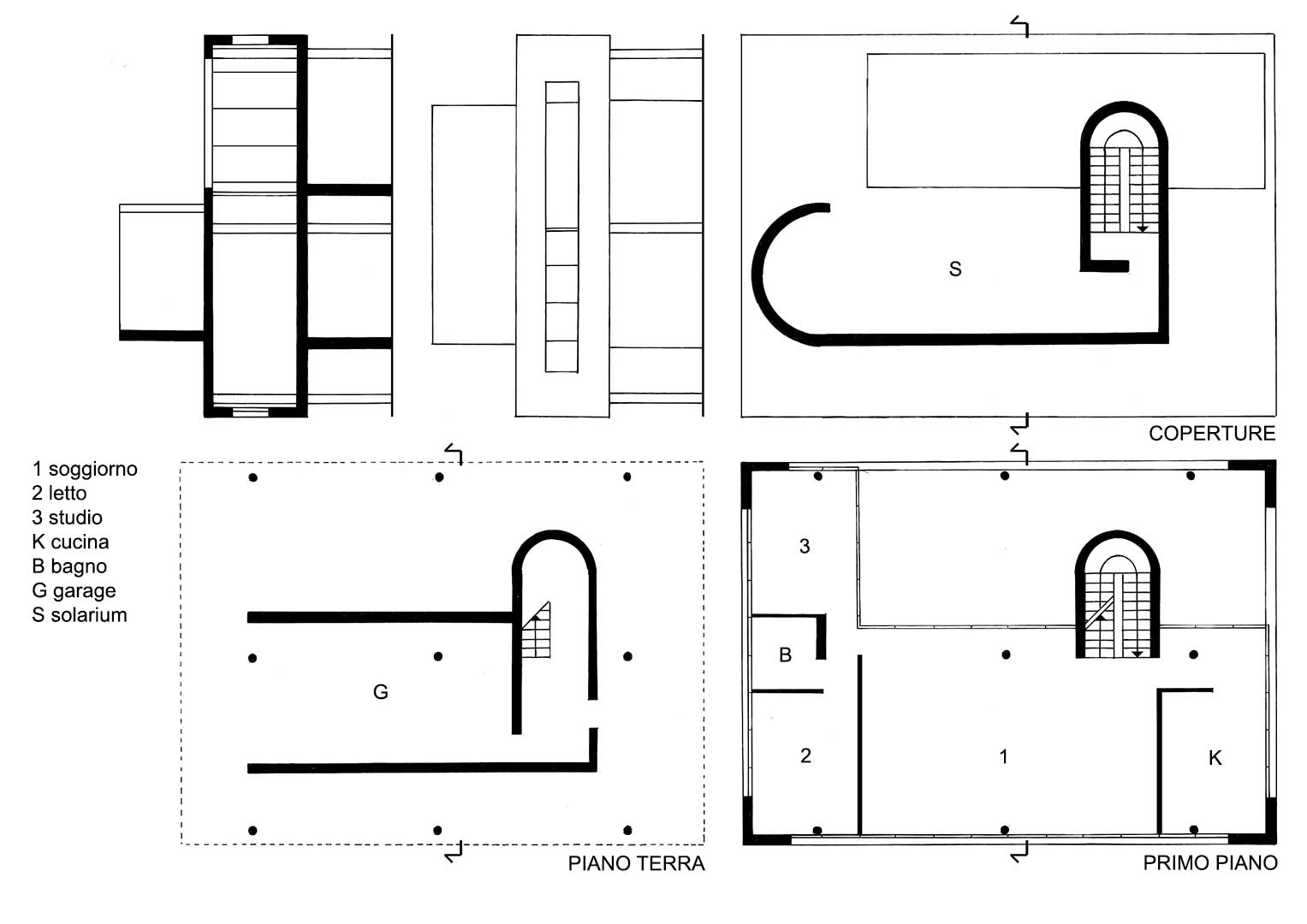
[ click sulle icone per i disegni e le foto dei modelli ]