vai alle valutazioni sul database MIES VAN DER ROHE
esercizi di stile 2021 / 2022
torna all'indice della galleria
Andrea Azzarelli Gabriele Barone Paola Bellomo Carla Ciancitto Dario Mangione
Agnese Mannile Giulia Marino Vincenzo Messina Lucrezia Panarello Salvatore Patanè
Vito Paternò Sofia Sabato Antonella Torrisi

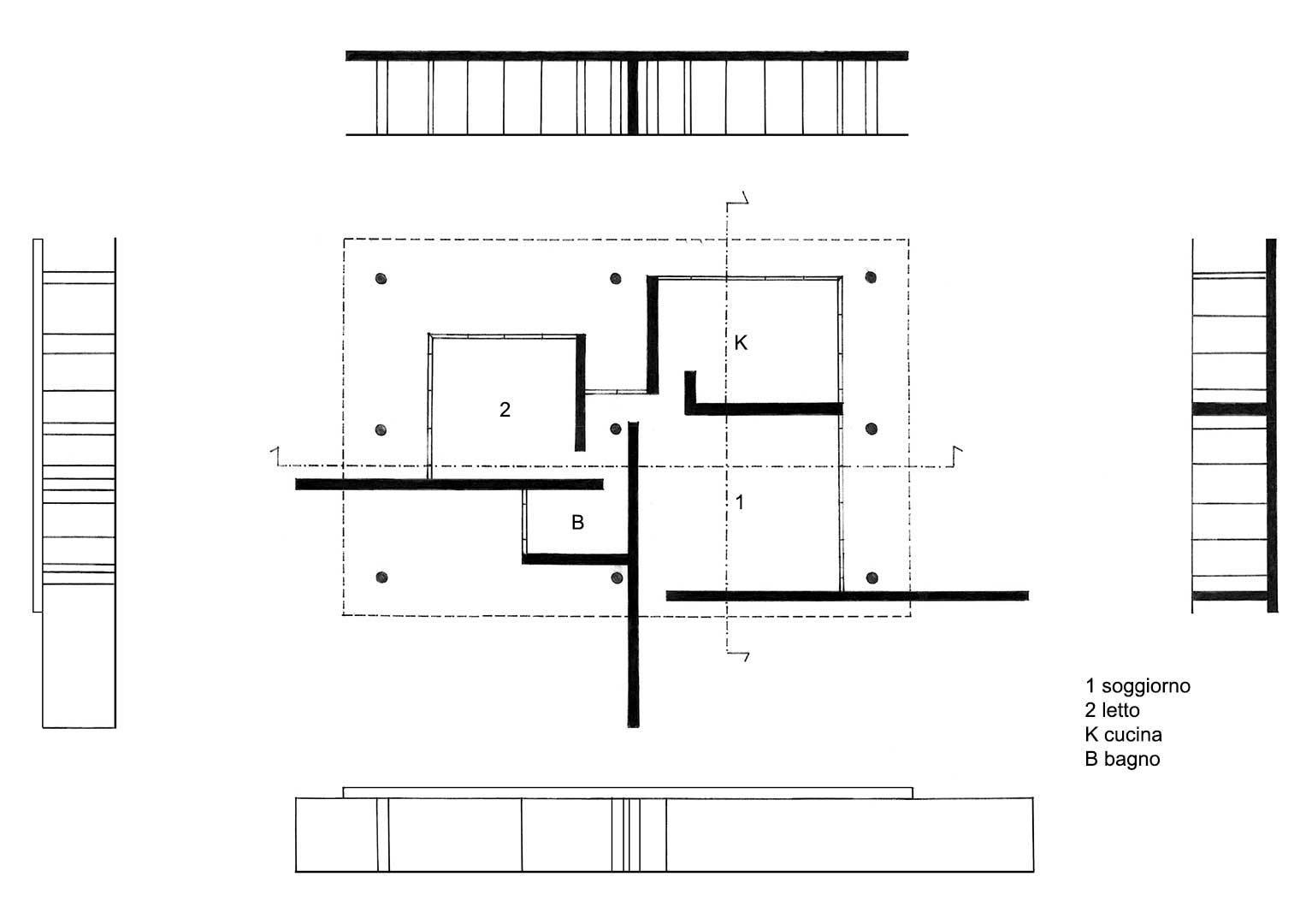
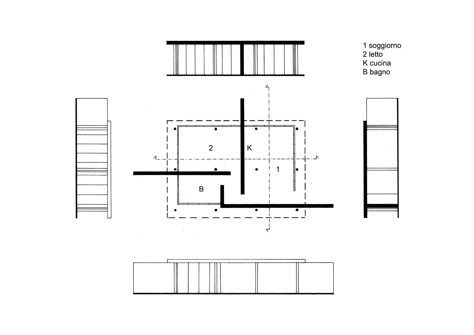
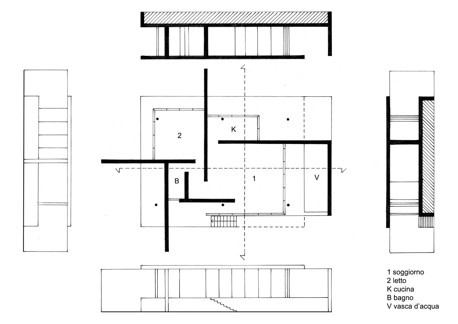
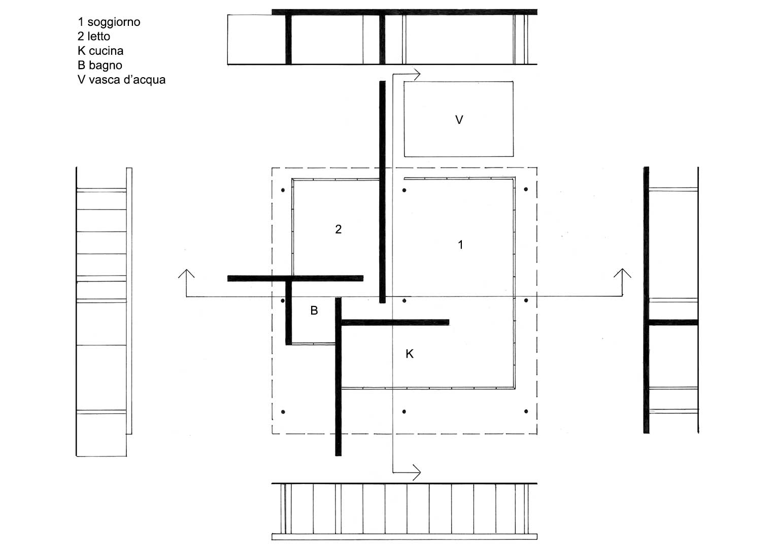
[ click sulle icone per i disegni e le foto dei modelli ]