vai alle valutazioni sul database LE CORBUSIER
esercizi di stile 2020 / 2021
torna all'indice della galleria
Alessandro Albertelli Roberta Andolina Alessandra Barone Angelica Bovo
Giulia Castro   Agnese Catalano Gaia Celi
Debora Dierna Giuliana Galvagno Erica Lavenia Sofia Lo Turco

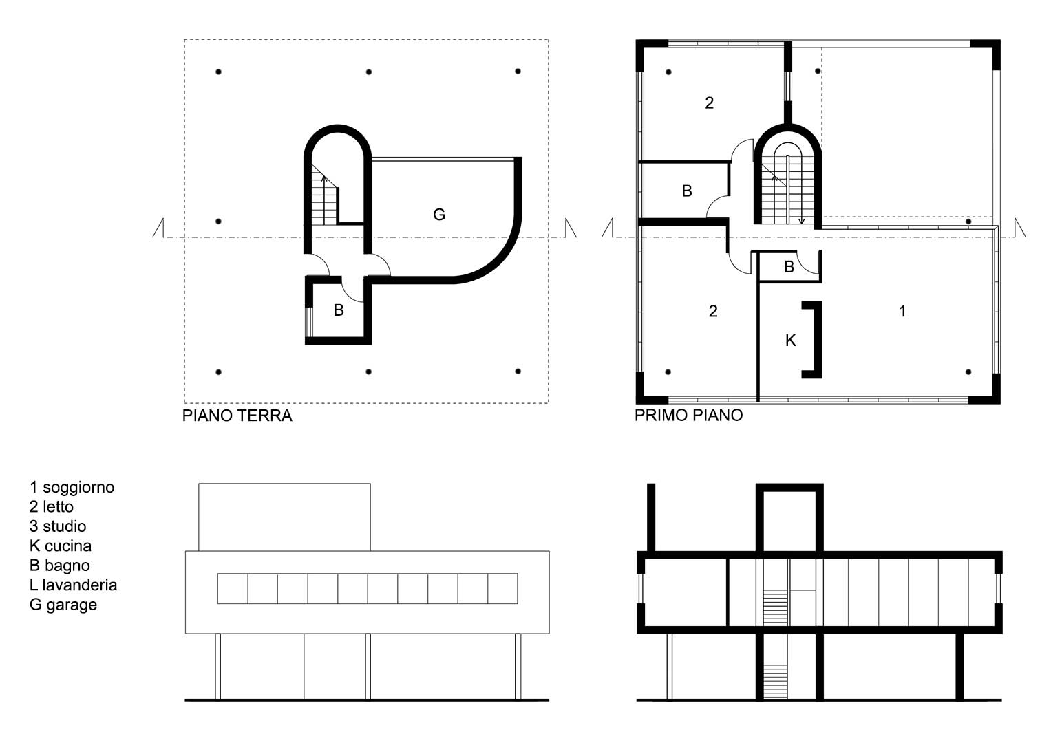
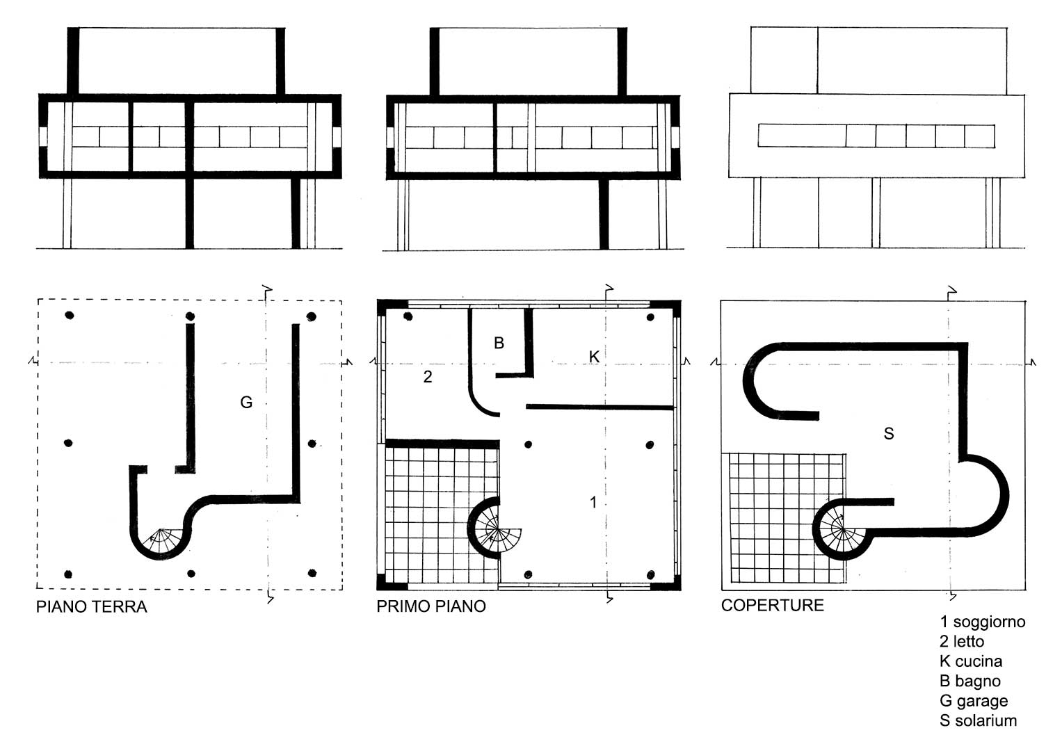
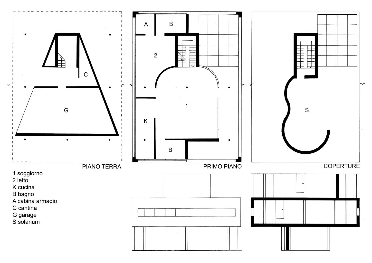
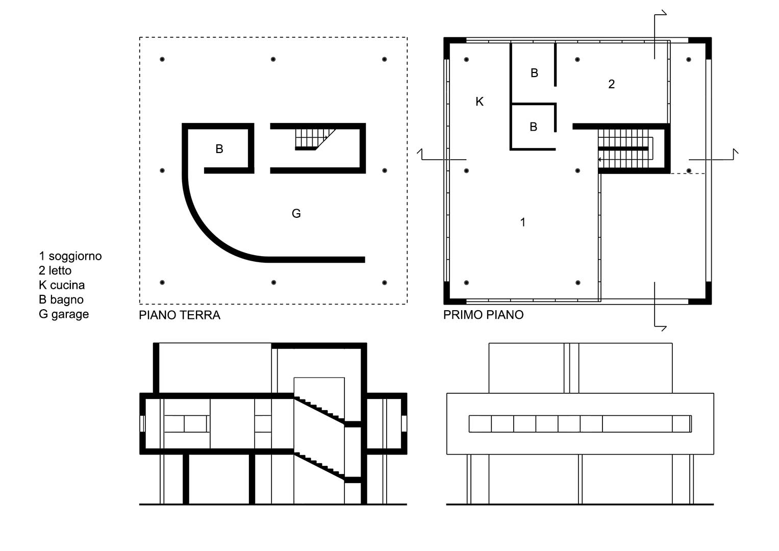
[ click sulle icone per i disegni e le foto dei modelli ]