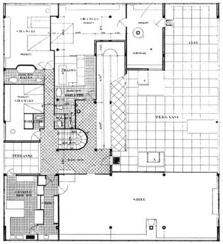
Le Corbusier e P. Jeanneret, Ville Savoie, Poissy 1929
Pianta piano primo