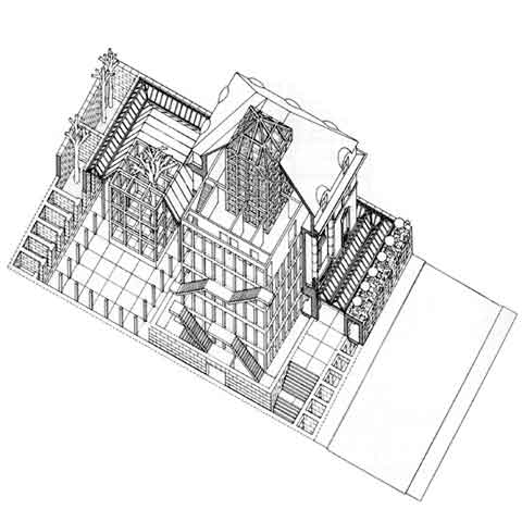
Oswald Mathias Ungers, progetto per Deutsche Architekturmuseum a Francoforte