vai alle valutazioni sul database WALTER GROPIUS
esercizi di stile 2021 / 2022
torna all'indice della galleria
Giulia Marino Simona Messina Eliana Montalto Elena Platania Rosaria Romano
Pietro Saitta Vittoria Sapienza Sofia Scafidi Chiara Vaccarella Lia Di Mauro


Clara Loria


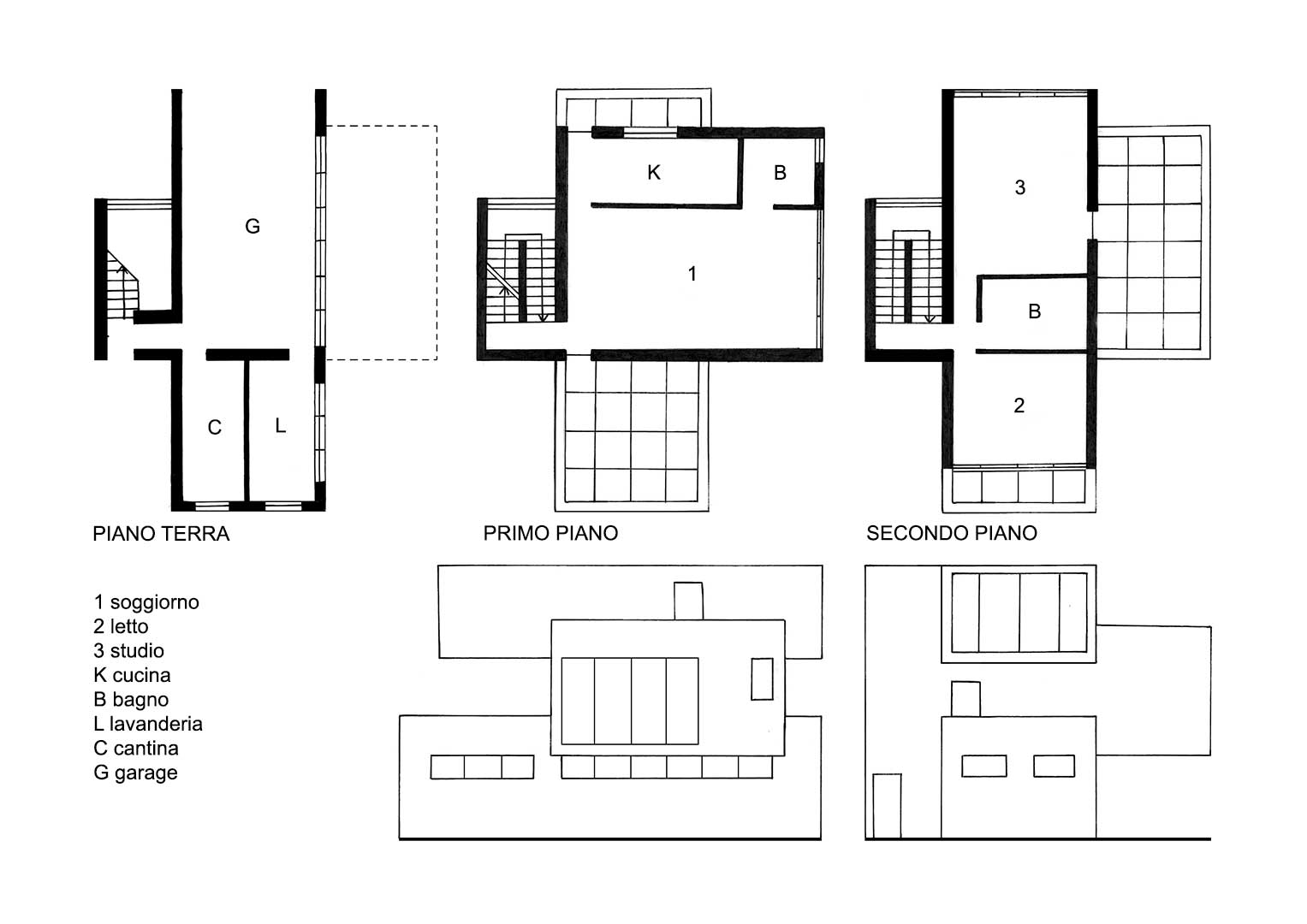
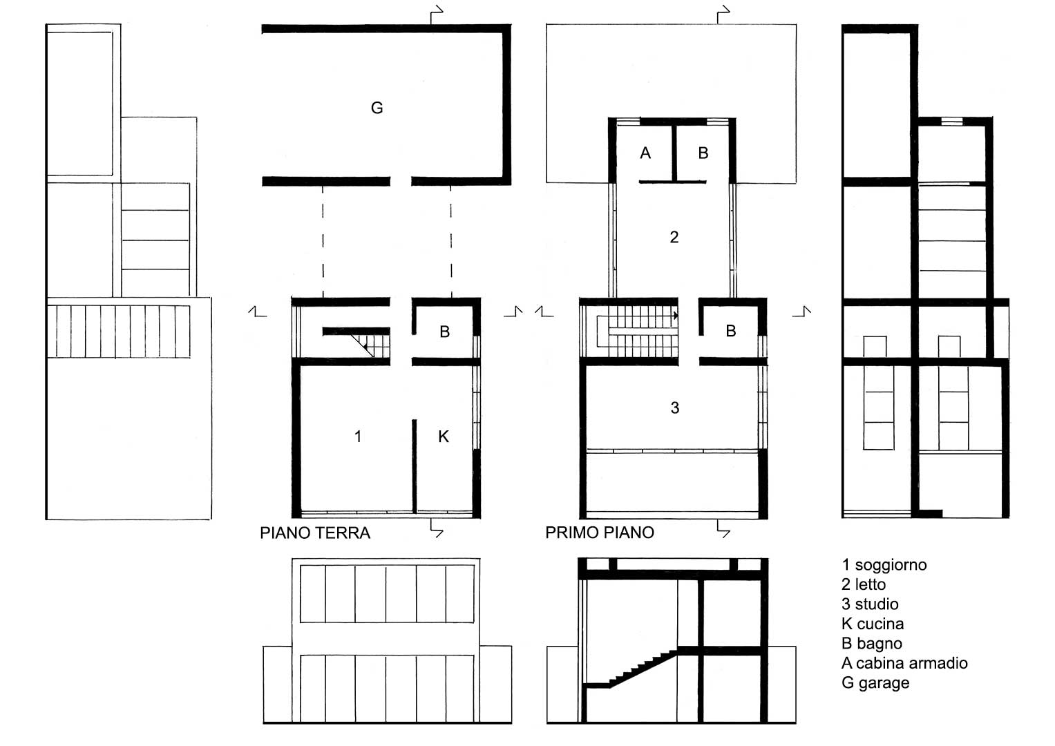
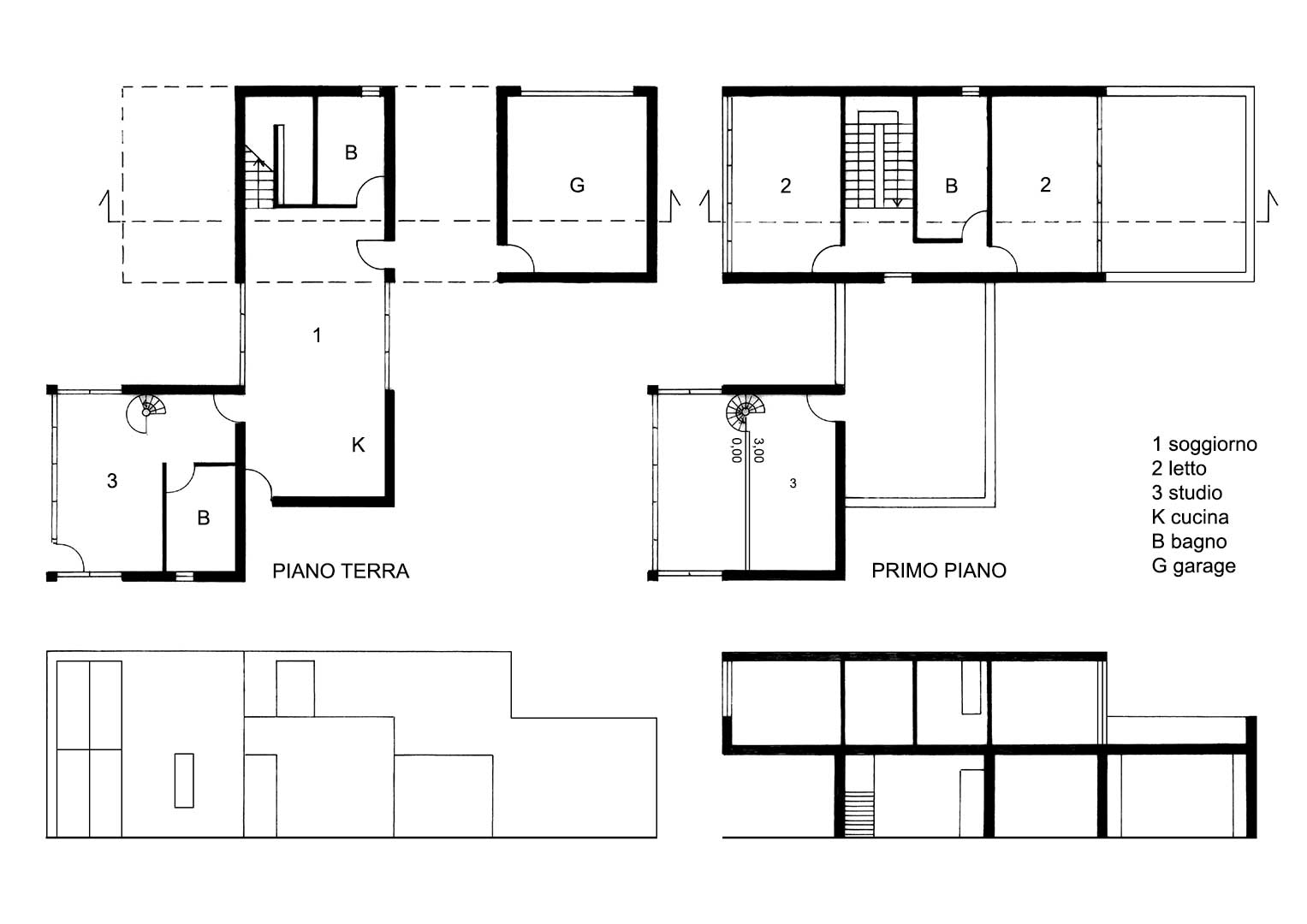
[ click sulle icone per i disegni e le foto dei modelli ]