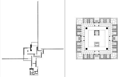
la casa in mattoni di Mies e la Sinagoga Hurva di Kahn (piante)